MS ROYAL ADMIRAL
Mit unserer Königin setzen wir neue Maßstäbe für Gulets
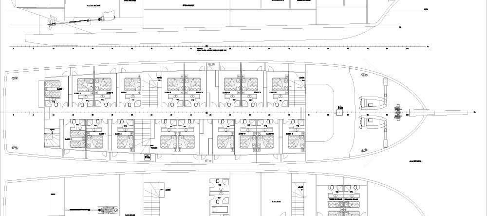
Ausstattung
Unsere neue MS Royal Admiral wird für Furore sorgen und ihrem Namen alle Ehren machen. Ein Motorsegler aus massivem Holz in dieser Größe ist weltweit beispiellos. Größe und das Innendesign aller Schiffsbereiche wird für neue Standards sorgen. Dabei legen wir höchsten Wert auf Qualität, maritimes Styling und Funktionalität.
MS ROYAL ADMIRAL
STAPELLAUF
MÄRZ 2016Typ
Ultra Luxus GuletSaison
April-OktoberGesamtlänge
75m LängeBreite
13,50mKabinen
Das ist einzigartig: Kabinen mit Meerblick! Alle Kabinen auf der MS Royal Admiral haben Panoramafenster werden mit einem eigenen franz. Balkon ausgestattet sein. Selbstverständlich verfügen alle Kabinen über Klimaanlage und Bad ensuite.Weitere Highlights
Wir möchten noch nicht zu viel verraten…. Aber was unsere Gäste auf der MS Royal Admiral erwarten werden, erreicht eine neue Dimension. Noch größere Out-Door-Bereiche, einen SPA-Bereich im unteren Deckbereich, Jacuzzi auf dem Vorderdeck….
MS ROYAL ADMIRALTechnische Informationen
Werft/Ausführung: Ayna Tersahanesi, Fethiye
Konstruktion/Styling: Viking Gemi Insaat Müh., Fatma Kisar
Indienststellung: geplant 2025
Heimathafen: Istanbul
Management/Eigner: Admiral Yatcilik
Länge über alles: 75,0 m
Länge über Rumpf: 57 m
Größte Breite: 13,50 m
Tiefgang: 4,65 m
Max. Geschwindigkeit unter Motor: 16 kn
Dieseltank: 16 t
Trinkwassertank: 80 t
Motorleistung:
2 Motoren à 1.100 HP (Daewoo)
Generatoren / Leistung: 2 Generatoren à 80 KW (Daewoo) + 2 Generatoren à 33 kw (Kubato)
Abwassertank: 30 t
Abwasseraufbereitung: vollautomatisches Klärsystem (Blue Sea 12.000)
Stromversorgung: Elektrik 24/220 Volt tagsüber
Klimaanlage: ausgelegt bis 40° C
Hydraulische Segel- und Ankerwinden, Navigationsanlage mit SAT NAV, Grenzwellen-Sende- und Empfangsanlage, Radar.
Beiboote Joker / je 30 PS, 2 Steuerstände, Rettungsinseln für 60 Personen.
Crew -Kabinen: 1 Kapitäns-Kabine / 6 Crew-Kabinen
Crew: 10-15 Personen
Voll ausgestattete Bordküche, Wäscherei, Kühlräume, Kezeption, Salon, 3 Bars
Zertifiziert durch die Turkish Lloyd
Copyrights © 2019 & All Rights Reserved by Admiralsyacht.
Deutsch
English
